30 Minlaton Road

Yorketown

$335,000 excluding GST

Property Description

Versatile Commercial Opportunity with Value-Add Potential

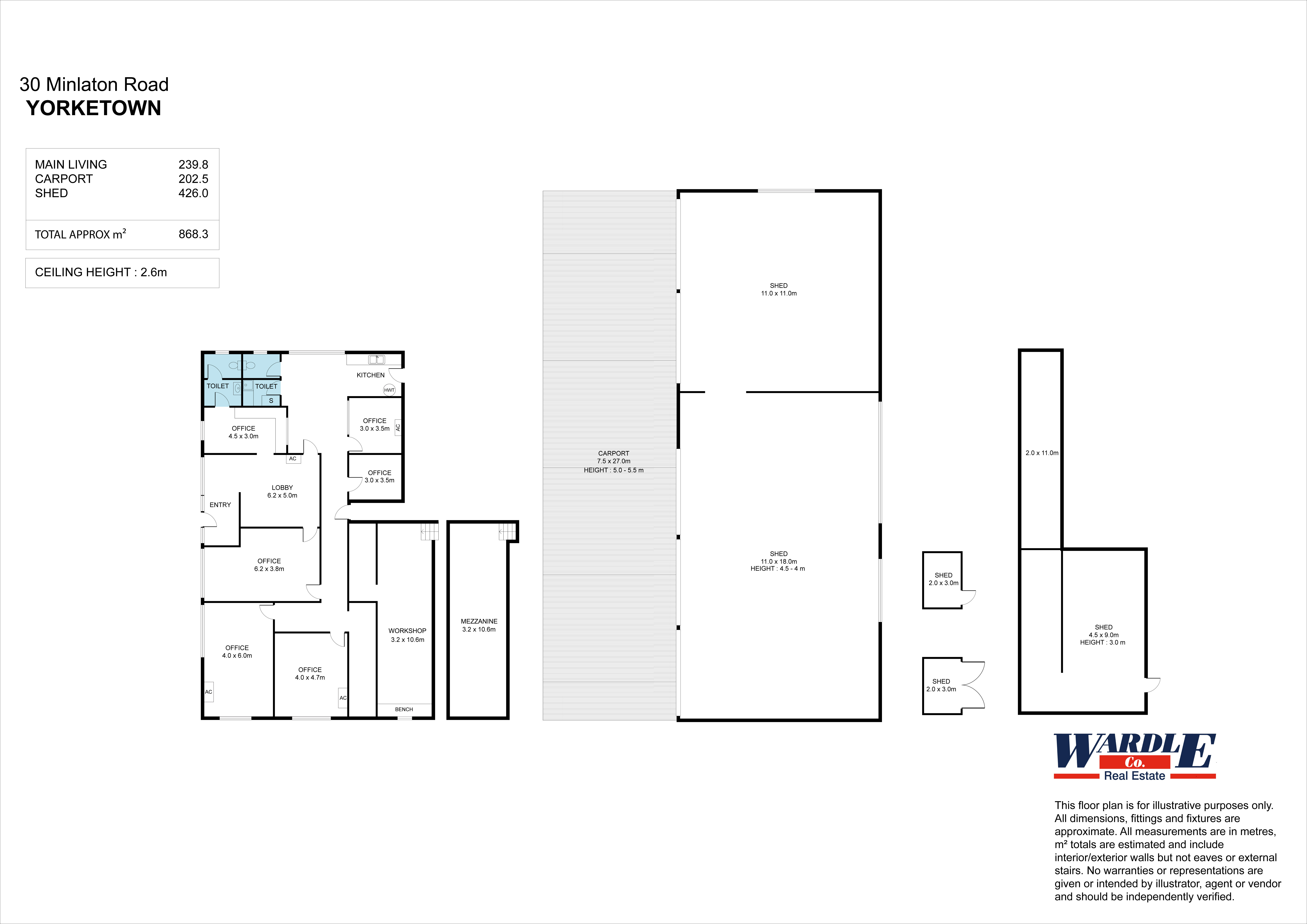
Positioned in a highly visible and accessible location, 30 Minlaton Road, Yorketown presents a fantastic opportunity for businesses or investors seeking a versatile commercial space with the potential to add value. While the property would benefit from some updating and maintenance, it offers a solid foundation with excellent infrastructure already in place.

Key features include:

- 3-phase power, suitable for a range of commercial or light industrial uses

- 6kW solar system to assist with energy efficiency

- Spacious shed with mezzanine, ideal for storage or additional workspace

- 5-metre-high carport accommodating trucks, buses, or large vehicles

- Six offices, with three fitted with split system air conditioning

- Front reception area with adjoining waiting room

- Kitchen facilities for staff convenience

- Eight on-site car parks for staff and clients

With great bones and plenty of potential, this property is well suited to those looking to renovate, customise, or invest in a functional commercial premises in a prime Yorketown location.

Contact Tony Clark on 0427 363 161 to arrange an inspection.

RLA228106

Property Code: 12250

Property Features

Location

Agent

agent picture

Tony Clark

Agency

Wardle Co Real Estate
(08) 8633 4555
martin.stringer@wardleco.com.au
90 Florence Street Port Pirie
Port Pirie, SA 5540