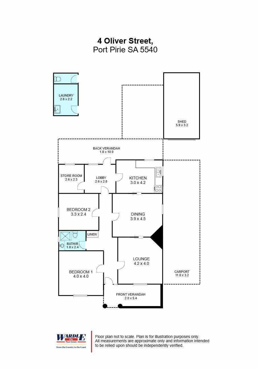
4 Oliver Street

Port Pirie

$205,000 - $220,000

2
1
2

Property Description

OPPORTUNITY IN PORT PIRIE SOUTH

Set on a 604m² allotment, this timber-framed two-bedroom home is being sold by the mortgagee and is ready for a major renovation. A great opportunity for the hands-on buyer, flipper, or tradesperson to bring it back to life and add value.

The home offers a traditional layout with central hallway, large lounge, and separate kitchen/dining space. However, extensive repairs are required – including replacement of internal walls, flooring, kitchen, and electrical work.

Positioned in Port Pirie South and offering good street frontage, this property provides a solid base for those willing to put in the effort.

Key Details:

- Approx. 604m² allotment



- Two bedrooms plus study/dining



- Timber frame construction



- Sold by the mortgagee – property requires full renovation



Bring your tools, vision, and energy – this one’s not for the faint-hearted but could be a great project for the right buyer.

Disclaimer: The property is being sold as is. No warranties are provided regarding the condition or functionality of any services or structures.

RLA228106

Property Code: 11849

Property Features

Land Size

604 Square Mtr

Built-in Robes

no

Open Fire Place

no

Study

no

Solar Panels

no

Water Tank

no

Location

Agent

Lee Jackson

agent picture

Sean Manfield

Agency

Wardle Co Real Estate
(08) 8633 4555
martin.stringer@wardleco.com.au
90 Florence Street Port Pirie
Port Pirie, SA 5540