19-21 Sixth St

Quorn

Under Offer

1
1
8

Property Description

Versatile double Allotment

A rare opportunity in the heart of Quorn — this substantial double allotment offers outstanding flexibility for trades, business, or storage use, all on an impressive 2,022m² (approx.) landholding.

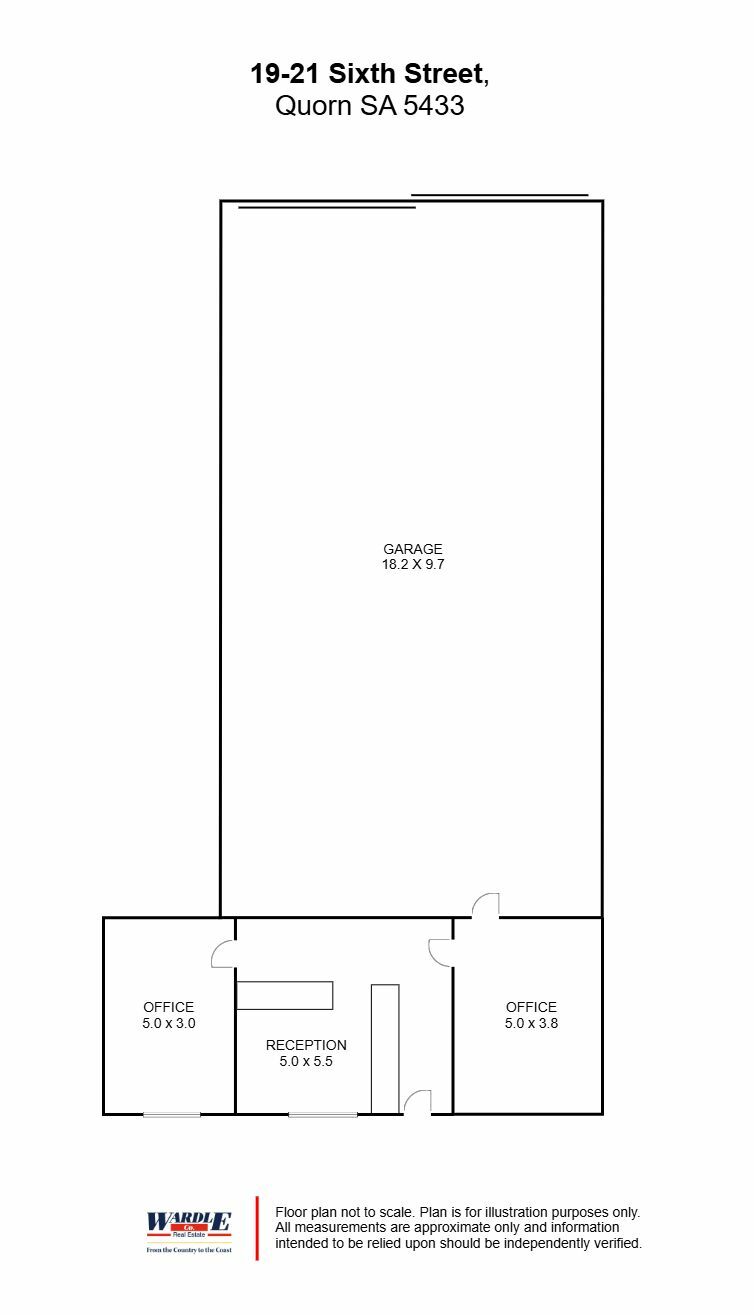
Set across two titles, the property features a solid concrete block office and reception building with two internal offices and excellent access to the yard. Behind, a massive 60’ x 35’ (approx. 18.3m x 10.7m) workshop with 11.5’ (approx. 3.5m) high doors provides ample space for vehicles, machinery, or large equipment, all supported by three-phase power.

Outside, the property includes a concrete wash bay, open yard space, and secure fencing, making it ideal for a variety of commercial or trade-based operations.

Adding to its character is the remnant stone church building — a nod to Quorn’s early history — now in need of repair but offering scope for creative restoration or incorporation into future plans (subject to consent).

Key features:

- Total land area: approx. 2,022m² (two titles)



- Rates: approx. $2,342 per annum



- Water: approx. $89 per quarter



- 3-phase power connected



- Excellent access and visibility



- Flexible zoning – Township (Flinders Ranges Council)



Perfect for owner-operators, investors, or anyone looking to establish a base in the Flinders Ranges region. Properties with this kind of footprint and infrastructure rarely come to market.

RLA228106

Property Code: 11851

Property Features

Land Size

2,022 Square Mtr

Built-in Robes

no

Open Fire Place

no

Study

no

Solar Panels

no

Water Tank

no

Location

Agent

Lee Jackson

Agency

Wardle Co Real Estate
(08) 8633 4555
martin.stringer@wardleco.com.au
90 Florence Street Port Pirie
Port Pirie, SA 5540