44 & 44A Graves St

Kadina

Under Offer

Property Description

PRIME COMMERCIAL INVESTMENT OPPORTUNITY

Positioned in the heart of Kadina’s main street, this rejuvenated commercial property presents an outstanding opportunity for astute investors or a self-managed superannuation fund (SMSF).

The property is securely leased to established tenants who are deeply invested in the local area, with a solid 3 x 3 year lease in place, offering long term income security and peace of mind.

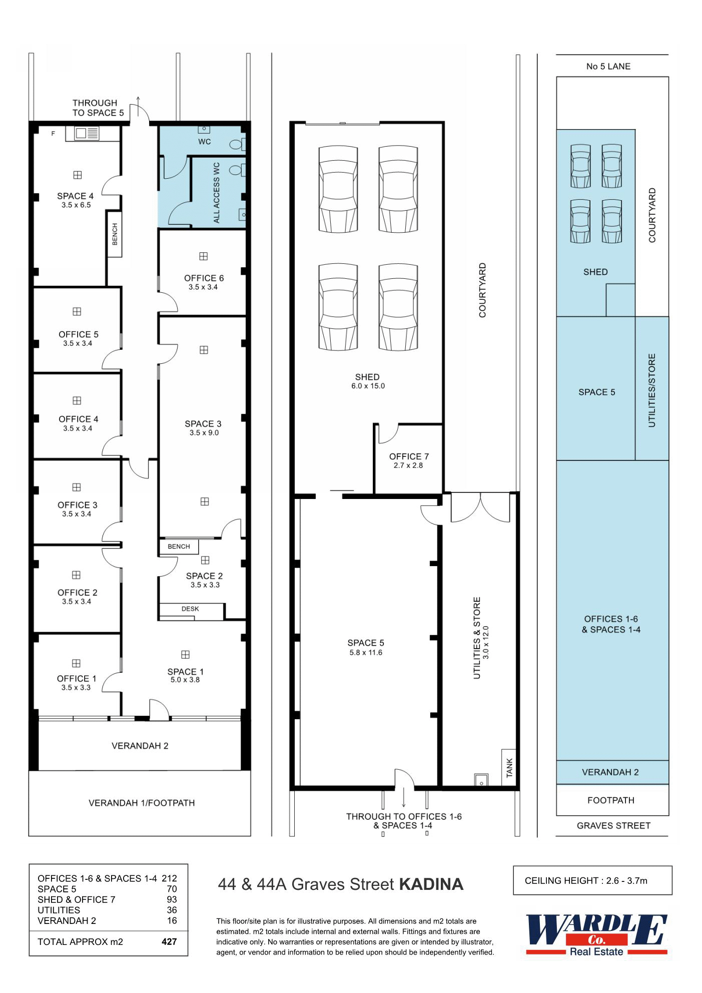
The building features a well-designed layout, including:

- 6 private offices

- Reception area and admin space

- 2 Conference room

- Staff kitchen and amenities

- Activity room

- Rear shed with office for storage or off-street parking

- Utilities and store

With its prominent location, quality fit-out, and secure lease, this property ticks all the boxes for a smart commercial investment.

Contact us today for further information or to arrange a private inspection. Information Memorandum available upon request.

RLA228106

Property Code: 11694

Property Features

Land Size

518 Square Mtr

Location

Agent

agent picture

Brenton Brind

Agency

Wardle Co Real Estate
(08) 8633 4555
martin.stringer@wardleco.com.au
90 Florence Street Port Pirie
Port Pirie, SA 5540