26 Moppett Road

Port Pirie

Sold

3
1
2

Property Description

WHEN A VILLA CAN BE BEST

A return verandah villa with good bones and is ready for the new owner to renovate and bring back it's true character. Goode central location quite close to amenities on a generous allotment.

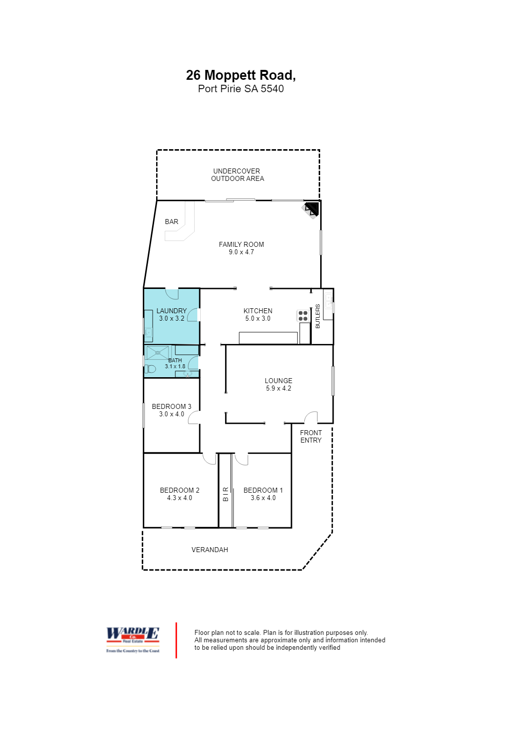
- 3 Bedrooms with the main having a built-in wardrobe

- Extra large lounge

- Original kitchen with butlers style pantry

- Tiled bathroom with shower recess, vanity and toilet

- Large laundry

- Rear family/games room with split system ariconditioning, wood heater and built-in bar

- Sliding door access to the rear carport/entertaining area

- Solar panels

- Large original shedding

- Good access to the rear yard for vehicles

- Allotment size of approximately 1012m2

Has lovely street appeal and would suit a buyer looking for a large home who is ready to get their hands dirty to create something special

RLA228106

Property Code: 11399

Property Features

Land Size

1,012 Square Mtr

Built-in Robes

no

Open Fire Place

no

Study

no

Solar Panels

no

Water Tank

no

Location

Agent

agent picture

Sean Manfield

Agency

Wardle Co Real Estate
(08) 8633 4555
martin.stringer@wardleco.com.au
90 Florence Street Port Pirie
Port Pirie, SA 5540