78 Moscow Street

Peterborough

$299,000

3
1
2

Property Description

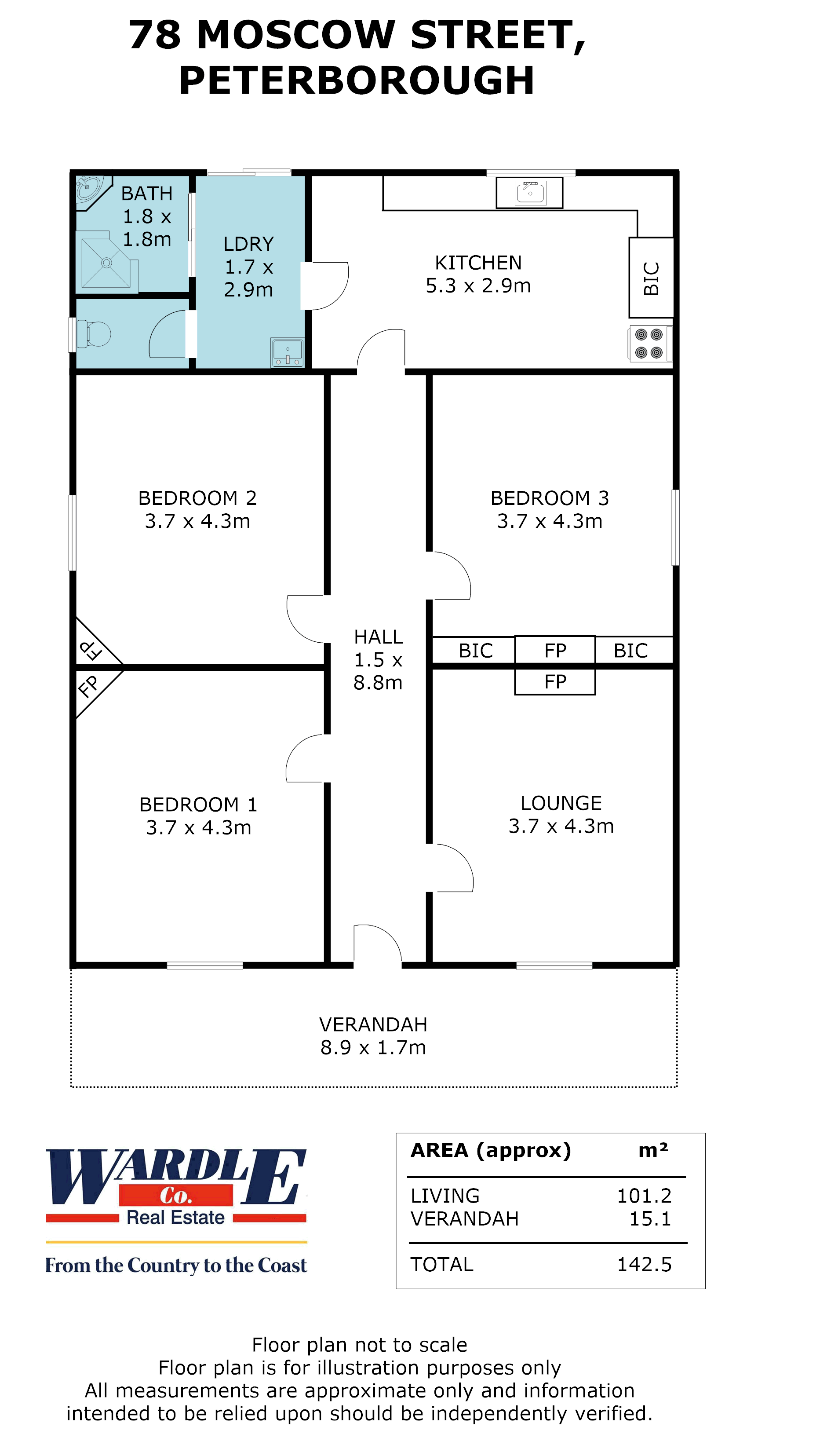
Charming Stone Villa with Rear Lane Access

Discover this well-presented stone villa in a quiet street of Peterborough, offering classic charm and practical living. With large rooms, high ceilings, and ceiling fans throughout, this home provides a comfortable and spacious feel.

Step inside to a central hallway, ensuring excellent flow between rooms. The neat country kitchen, featuring a freestanding electric oven and rangehood, is ready for home-cooked meals. The bathroom includes a corner vanity, large corner shower, and a separate toilet for added convenience.

Outside, the property boasts a gravel rear yard with established trees, offering a low-maintenance yet inviting outdoor space. The rear lane access is a fantastic bonus, providing easy entry for larger vehicles, trailers, or additional storage needs.

Additional Features:

- Carpeted bedrooms with ceiling fans

- Tiled bathroom & laundry with practical fittings

- Electric hot water system for efficiency

- 6m x 4m (approx.) secure shed for storage or workshop space

- Rainwater tank for added sustainability

This wonderful stone villa is ideal for those seeking a comfortable home in a peaceful location with excellent accessibility. Don’t miss out – contact us today for a viewing!

CT5272/526

Land Size: 952 sqm approx

LGA: District Council of Peterborough

Zoned: Neighbourhood

RLA228106

Property Code: 11258

Property Features

Land Size

952 Square Mtr

Built-in Robes

no

Open Fire Place

no

Study

no

Solar Panels

no

Water Tank

no

Location

Agent

Angus Barnden

Agency

Wardle Co Real Estate
(08) 8633 4555
martin.stringer@wardleco.com.au
90 Florence Street Port Pirie
Port Pirie, SA 5540