216 Gulfview Rd

Napperby

Sold

3
1
4

Property Description

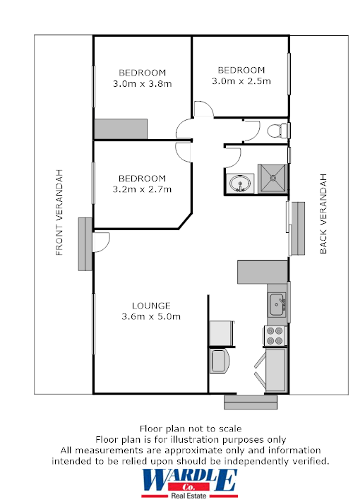
Affordable Country Living

In a quiet corner of the rural township of Napperby, this neatly fitted out transportable has a homely feel, on a good size block sits a double garage with street access, tool shed and plenty of rain water storage.

- 3 Bedrooms, one with built in robes

- Kitchen/family and dining together with laundry close by

- Neatly renovated bathroom with shower and vanity

- Separate toilet

Located on the corner of Gulf View Road and East Tce, the view of the Southern Flinders is a sight to behold. The washing machine and dryer are included in the sale, Solar panels on the shed, Evaporative air con. through out, as well as wall air con. in the lounge.

RLA228106

Property Code: 3626

Property Features

Built-in Robes

no

Open Fire Place

no

Study

no

Location

Agent

Lee Jackson

Agency

Wardle Co Real Estate
(08) 8633 4555
martin.stringer@wardleco.com.au
90 Florence Street Port Pirie
Port Pirie, SA 5540