Priced to sell for the savvy investor. rented at $230 per week this Brick Veneer home needs to be in your portfolio.
-Approx 604m2 allotment
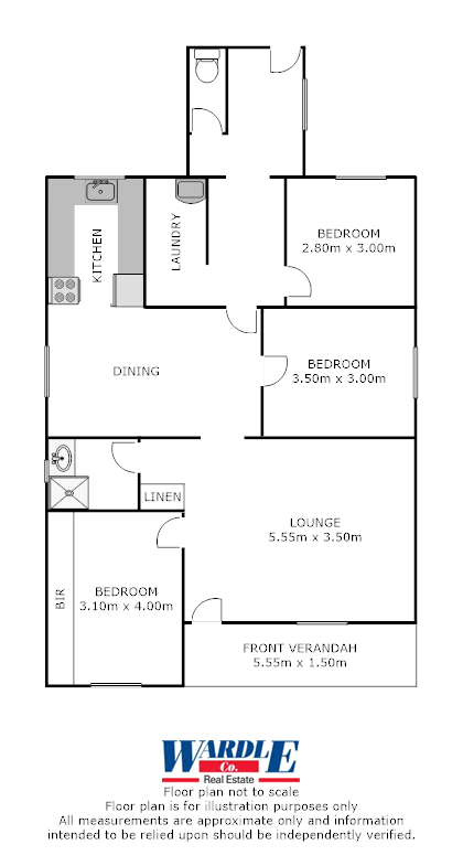
-Three bedrooms main with built in robe,
-Neatly tiled bathroom,
-L shaped Kitchen/dining with the dining area being suitable for a large table.
-Mains Gas, water and sewer connected
-Laundry and toilet.
-Undercover parking
-New roof 2021
Other extras include split system heating and cooling, ducted evaporative cooling and polished floors. With a strong rental market in Port Pirie, now is the time to increase your investments.
Call Lee today!!
Property Code: 4475
Built-in Robes
no
Open Fire Place
no
Study
no
Solar Panels
no
Water Tank
no