20 Cumnock Street

Jamestown

Under Offer

3
1
5

Property Description

Location - Upgraded Stone cottage - Location

This attractive 3 bedroom stone cottage has undergone a series of updates for the new owner to enjoy. Positioned within the central location that this Cumnock Street address has to offer looking over the Belalie Creek this property would make a fantastic home or investment.
Some of the updates to the property since 2013 include a new wood heater to the lounge, new 20x20 approx. shed and pergola, 5.5 kilowatt solar system into the grid, and modern hot water system.
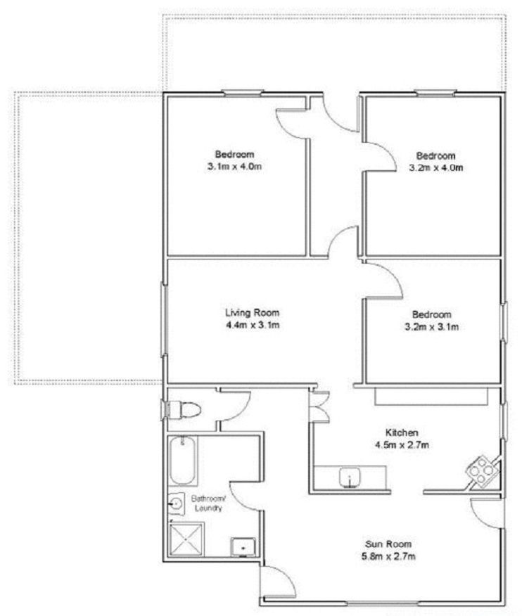
The floor plan presents 3 bedrooms, lounge room, compact kitchen and sun room as well as the combined bathroom & laundry and separate toilet.
Currently leased until November @ $250pw.

Property Code: 2380

Property Features

Land Size

765 Square Mtr

Location

Agent

agent picture

James Wardle

Agency

Wardle Co Real Estate
(08) 8633 4555
martin.stringer@wardleco.com.au
90 Florence Street Port Pirie
Port Pirie, SA 5540